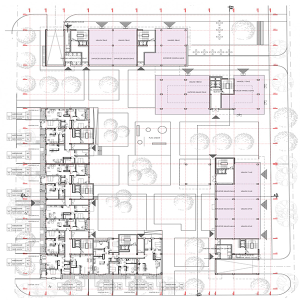
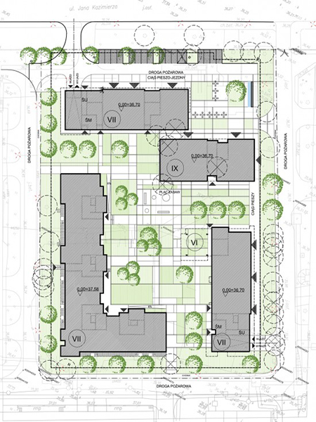
Zespół budynków mieszkalnych przy ul. Jana Kazimierza
Zrealizowane budynki są jedną z pierwszych inwestycji realizowanych przez pracownię na terenach poprzemysłowych przy ul. Jana Kazimierza w Warszawie. Jednocześnie są początkiem działań projektowych w skali urbanistycznej. Pracownia prowadzi prace przy inwestycjach położonych w sąsiedztwie.
| STATUS: | Ukończony |
| ADRES: | Warszawa – Wola, ul. Jana Kazimierza |
| KLIENT: | SABE Investments |
| PROJEKTANT GENERALNY: | Mariusz Lewandowski |











