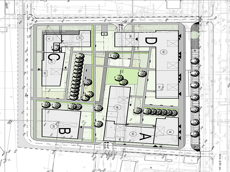
Projektowany budynek mieszkalny składa się z trzech części posadowionych na wspólnej kondygnacji garażu podziemnego. Bryła o zróżnicowanej wysokości od VI do IX kondygnacji z antresolą tworzy zabudowę pierzejową wokół kwartału. W pierzejach zlokalizowane są otwarcia prowadzące na wewnętrzny zielony dziedziniec rekreacyjny.
W północnej-wschodniej części pierzei od ulicy Jana Kazimierza znajduje się dominanta całego zespołu. Jest to dynamiczna forma składająca się z kilku brył, która rozpoczyna się od strony południowo-wschodniej z kulminacją w narożniku od ul. Jana Kazimierza. Biały kolor elewacji, głębokie wycięcia nadwieszeń oraz kompozycja otworów kształtują estetykę tej i pozostałych części budynku, tworząc spójną całość. W parterach budynku zlokalizowano lokale usługowe, handlowe i biurowe, dostępne z ulic wewnętrznych opasujących zaprojektowany kwartał.
| STATUS: | W realizacji |
| ADRES: | Warszawa – Wola, ul. Jana Kazimierza |
| KLIENT: | Bumar Waryński S.A. Grupa Holdingowa |
| ROZMIAR: | 17 812m2 |
| PROJEKTANT GENERALNY: | Mariusz Lewandowski |



