Planowana inwestycja zakłada kompleksowy remont istniejącego budynku zlokalizowanego przy ulicy Foksal 10 w Warszawie, usytuowanego na działce ewid. nr 72 z obrębu 5-04-07, w Dzielnicy Śródmieście. Inwestycja obejmuje: przebudowę wnętrz istniejącego budynku, remont konserwatorski elewacji z zachowaniem zabytkowego wystroju architektonicznego, wzmocnienie fundamentów oraz wymianę konstrukcji dachu.
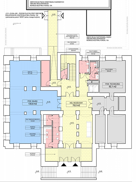
W kondygnacji piwnic -1 zaplanowano funkcję biurowo-usługową oraz pomieszczenia techniczne. Dodatkowo przewiduje się wykonanie otworu drzwiowego w północnej ścianie budynku, umożliwiającego połączenie szklanym łącznikiem z sąsiednim budynkiem (będącym w trakcie realizacji). Ponadto zaplanowano wygodne wejście do pomieszczeń piwnic bezpośrednio z poziomu chodnika ulicy Foksal.
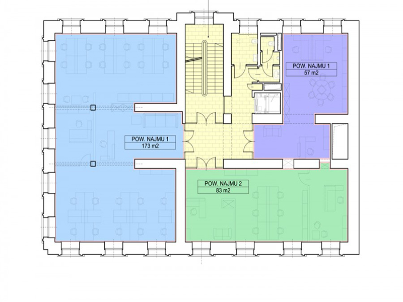
Powierzchnia parteru jest przeznaczona na funkcję biurowo-usługową i recepcyjną, jako część reprezentacyjnego lobby wejściowego z głównym wejściem do budynku od strony ulicy Foksal po istniejących reprezentacyjnych schodach zewnętrznych. Kondygnacje powyżej parteru zaplanowano pod funkcje biurowe. Dostęp p.pożarowy do budynku istnieje od strony ul. Foksal i od strony ul. Krywulta.
| STATUS: | Koncept |
| ADRES: | Warszawa, ul. Foksal |
| ROZMIAR: | 1 900m2 |
| PROJEKTANT GENERALNY: | Mariusz Lewandowski |






