Budynek apartamentowy – projekt koncepcyjny
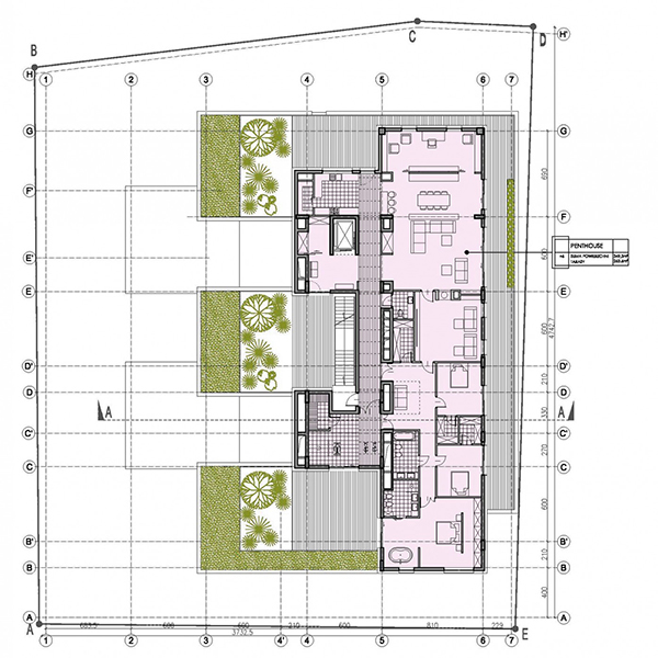
Projekt budynku mieszkalnego – wielorodzinnego o wysokim standardzie użytkowym. Budynek zlokalizowany na ulicy Merliniego w Warszawie jest średniej wielkości apartamentowcem. Zaprojektowane mieszkania są przestronne i funkcjonalne. Na ostatniej kondygnacji mieści się 300 metrowy penthouse. Projekt powstał na zamówienie dewelopera.
| STATUS: | Koncept |
| ADRES: | Warszawa, ul. Merliniego |
| KLIENT: | SABE Investments |
| PROJEKTANT GENERALNY: | Mariusz Lewandowski |






