Budynek mieszkalny, wielorodzinny z usługami w parterze
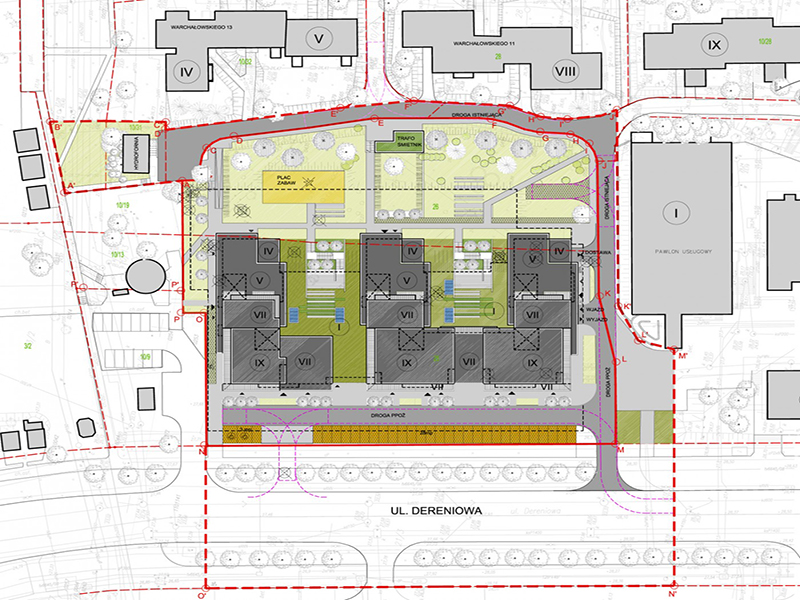
Budynek jest niejako kontynuacją inwestycji w zabudowę ulicy Dereniowej na warszawskim Ursynowie. Pracownia w ramach współpracy z lokalną spółdzielnią mieszkaniową wykonuje kolejną inwestycję o podobnej skali, funkcji oraz architekturze. Trzeci już budynek mieszkalny charakteryzuje się, jak poprzednie, wysoką jakością rozwiązań funkcjonalno-architektonicznych.
| STATUS: | W realizacji |
| ADRES: | Warszawa – Ursynów, ul. Dereniowa |
| KLIENT: | SMB Imielin |
| ROZMIAR: | 9 200 m2 |
| PROJEKTANT GENERALNY: | Mariusz Lewandowski |
| LIDER PROJEKTU: | Paweł Ptaszyński |
| ZESPÓŁ PROJEKTOWY: | Piotr Młudzik |







