Konkurs na opracowanie koncepcji architektonicznej Terminala pasażerskiego regionalnego portu lotniczego
Projekt powstał na potrzeby konkursu architektonicznego ogłoszonego celem wyłonienia najlepszej koncepcji terminalu pasażerskiego dla lotniska zlokalizowanego w Szymanach, w woj. Warmińsko-Mazurskim. Zgłoszono ok. 150 prac do konkusru. Projekt naszej pracowni był w wąskim gronie prac nagrodzonych oraz walczących o zwycięstwo. Ostatecznie projekt otrzymał IV nagrodę w konkursie.
Idea
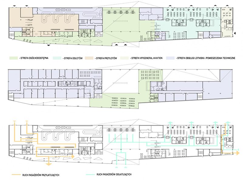
Budynek terminala zaprojektowano, jako dwukondygnacyjny. Cały ruch pasażerski i wszystkie funkcje bezpośrednio z nim związane zlokalizowane są na parterze: kasy biletowe, sala odpraw, poczekalnie przylotowe i odlotowe, bagażownia, sala odbioru bagażu oraz pomieszczenia ochrony i obsługi terminala bezpośrednio związane z ruchem pasażerów.
Południowa część poziomu parteru związana jest głównie z obsługą pasażerów przylatujących, a północna z obsługą pasażerów odlatujących. Dodatkowo w północnym końcu zlokalizowana jest strefa VIP / general aviation mogąca również służyć do odprawy załóg samolotów rejsowych. W centralnej części znajduje się główny hol połączony ze strefą odprawy biletowo-bagażowej. Część ta stanowi funkcjonalny i przestrzenny zwornik całego budynku.
Na piętrze zlokalizowane są funkcje pośrednio związane z ruchem pasażerów. Są to głównie pomieszczenia biurowe i socjalne pracowników lotniska, restauracja i poczekalnia z widokiem na płytę lotniska, oraz pomieszczenia techniczne związane z wentylacja i klimatyzacją terminala. W części południowej piętra nad strefą przylotów zlokalizowane są wszystkie pomieszczenia biurowe i socjalne, a w części północnej, częściowo nad strefą odlotów, pomieszczenia techniczne. W centralnej części nad holem wejściowym znajduje się restauracja połączona z dodatkową ogólnodostępną poczekalnią.
Sposób rozplanowania poszczególnych funkcji jest ściśle związany ze sposobem funkcjonowania terminala oraz oparty na wytycznych organizatora konkursu.
Ponadto rozlokowanie poczekalni przylotowych i odlotowych na krańcach budynku oraz oparcie tych części na prostej i powtarzalnej siatce konstrukcyjnej ułatwia jego późniejszą rozbudowę i zmianę aranżacji niektórych funkcji.

Architektura
Budynek ukształtowany jest z dwóch ortogonalnych części spiętych dynamiczną formą o ostrych kątach, która przykrywa strefę pasażu od strony podjazdu, holu głównego, strefy odpraw i poczekalni odlotowych. Nadaje ona bryle dużą dynamikę subtelnie nawiązując do tematyki lotniczej. Motyw trójkąta zastosowany w ukształtowaniu bryły oraz w wystroju wnętrza stanowi uniwersalne nawiązanie do kształtów skrzydeł i stateczników samolotów. Jednocześnie bardziej ortogonalne ukształtowanie części mieszczących pomieszczenia biurowe, zapleczowe, socjalne, techniczne itp. zapewnia możliwość ich funkcjonalnego, niepodporządkowanego formie rozplanowania.
Konstrukcja budynku przewidziana jest jako żelbetowa monolityczna. Część dynamiczna ukształtowana jest w sposób pozwalający na uzyskanie większych rozpiętości i atrakcyjnych przestrzeni holu, pasażu, strefy odpraw i poczekalni odlotowych. Konstrukcja pozostałej, większej części budynku oparta jest na bardzo powtarzalnej, ortogonalnej siatce konstrukcyjnej dającej przy zastosowaniu konstrukcji słupowo-płytowej ekonomiczne gabaryty elementów.
Na zewnątrz budynku dominuje neutralny beton architektoniczny, zaś we wnętrzu wykończenie w kolorze białym oraz elementy drewniane i czarne meble. Niektóre elementy konstrukcyjne we wnętrzu również planowane są jako surowe – żelbetowe. Ograniczenie zastosowanych we wnętrzu kolorów i materiałów ma zapewnić niezaburzony odbiór przestrzeni budynku. Dodatkowo duże przeszklenia przestrzeni holu, pasażu, strefy odpraw i poczekalni zapewniają kontakt z otoczeniem, a w przypadku strefy odpraw i poczekalni również wspaniały widok na płytę lotniska.
| STATUS: | Koncept |
| ADRES: | Szymany |
| ROZMIAR: | 10 000m2 |
| PROJEKTANT GENERALNY: | Mariusz Lewandowski |
| LIDER PROJEKTU: | Tomasz Szediwy |
| ZESPÓŁ PROJEKTOWY: | Michał Kędzia, Karina Konieczny, Katarzyna Jaśkiewicz, Robert Sobieszek |
| NAGRODY: | IV NAGRODA |





